As Oy Helsingin Kyöstinkuja 3
näkymä lounaasta
asempiirustus
asuntonäkymä
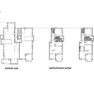
vaihtoehtoiset pohjaratkaisut
takka
kadun puoli
erillistalo

9 omistusasuntoa / 9 owner occupied apartments
Rakennuttaja / Developer: Skanska Etelä-Suomi Oy
Sijainti / Location: Kyöstinkuja 3, Helsinki
Valmistunut / Completed: 2002

Kulosaaren vanhaa omakotitaloaluetta täydentävät pienkerrostalot ja erillistalo. Asunnoista on näkymät puistoon tai merelle. Asuntojen pohjaratkaisut ja viimeistely on räätälöity asukkaiden toiveiden mukaan.

Urban villas complement an old housing area. All apartments have views either to the sea or to the surrounding park. Floorplans and finishings of each apartment are customized for the resident.

valokuvat/ photos:
Arno de la Chapelle ja Arkkitehtitoimisto Tiuri & Lommi Oy