Kymmenen pientalon ryhmä Het Fetlaer -alueelle Deventeriin Hollantiin. Suunnitelma 2003
Ten houses in Het Fatlaer, in Deventer, the Netherlands. Design 2003
Rakennuttaja / Developer: Vastbouw Oost BV
Kaksikerroksisia pientaloja uuden puutarhakaupunkimaisen asuinalueen reunalla Het Fetlaer De Vifjoekissa. Tonttikohtaiset pihat liittyvät asuntojen yhteisiin viheralueisiin rakennusrivistön välissä. Katunäkymää rytmittävät perushahmoltaan samanlaisten rakennusten päädyt värikkäine sisääntulokuisteineen. Korkeat kuistit muodostavat puolijulkisen tilan ulko- ja sisätilojen välille korostaen asuntojen pääsisäänkäyntiä. Rakennuskonseptissa on sovellettu avoimen rakentamisen periaatteita variaation ja yksilöllisten asukastoiveiden toteuttamisessa.
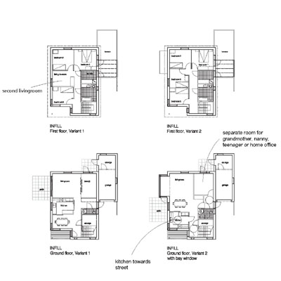
Peruskuutioon voi autotallin lisäksi liittää erikokoisia yksikerroksisia lisäosia erkkeristä sivuasuntoon. Pientalon voi tarvittaessa jakaa myös kahdeksi päällekkäiseksi pienasunnoksi.
Freestanding villas in a new housing area inspired by Garden city ideas. Green spaces include private yards and semiprivate green areas between houses connecting to the surrounding landscape with waterways. All houses have the same basic form with colourful entrance porches turning towards the street and highlighting the main entrance. Open building ideas are introduced to the concept to produce variety and individuality to the houses.
Besides the garage, extensions of different sizes can later be added to the two-storey cube by the owner. A number of floor plan options are designed. The house can be divided to form two individual smaller flats.