Vantaan Bäckbynpuisto
asuntopihat
asemapiirustus
pihat
näkymä koillisesta
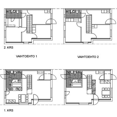
vaihtoehtoiset pohjat
näkymä puistosta
asuntopihat

Kaavamuutos ja toteutussuunnitelmat rivitaloalueelle Koivuhakaan
Terraced housing area in Vantaa

Rakennuttaja / Developer: SATO-Rakennuttajat Oy
Sijainti / Location: Staffaksenkuja 3-7, Vantaa
34 omistusasuntoa / 34 owner-occupied dwellings
Valmistunut vaihettain 2004-2006
Valittu Asuntorahaston vuoden 2003 hyvän suunnittelun esimerkkikohteeksi.
Nominated as the 2003 example of good design by the Housing Fund of Finland.
Completed 2004-2006

Rivitalot reunustavat viuhkana Bäckbynpuroa. Rakennusten väliin muodostuu luonteeltaan erilaisia sisäpihoja asuntojen sisäänkäyntien sijainnin mukaan. Asunnoilla on etelään avautuva asuntopiha sekä pohjoiseen avautuva etupiha tai takapuutarha.

Lähes jokainen on asunto on pihatiloiltaan ja pohjaratkaisuiltaan oma yksilöllinen tyyppinsä. Kuhunkin asuntoon on suunniteltu kaksi vaihtoehtoista pohjaratkaisua.

Terraced housing overlooking a small brook. The space between the buildings forms a variety of yard types - spacious south facing yards and entrance courts or private gardens to the north. Two alternative plans were designed for each dwelling.

valokuvat/ photos: Arno de la Chapelle