As Oy Helsingin Aurinkorivi
pihanäkymä
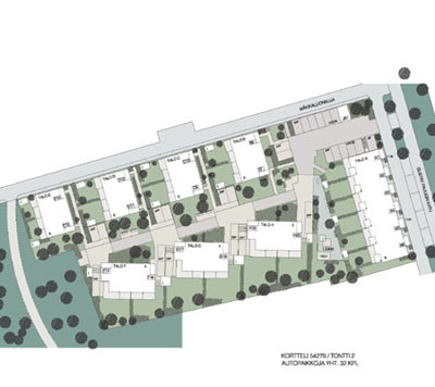
asemapiirustus
kiinteät osat
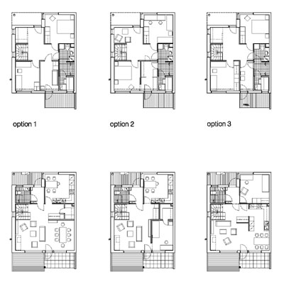
vaihtoehtoisia asuntopohjia
paritalojen rivi
pihat ja kuistit
rivitalo
piharaitti
pihat

Muunneltavat pientaloasunnot Vuosaaren Aurinkolahteen
avoimeen rakentamiseen perustuva tiivis ja matala kortteli
Adaptable houses in Aurinkolahti, Vuosaari
Low and dense housing based on Open Building


Rakennuttaja / Client: Asuntosäätiö
Sijainti / Location: Gustaf Pauligin katu 13, Helsinki
20 omistusasuntoa rivitalossa ja paritaloissa/ 20 owner occupied units
Valmistunut/ completed: 2004

As Oy Helsingin Aurinkorivi perustuu Europahouse- kutsukilpailun voittaneeseen ehdotukseen. Kansainvälisen Europahouse yhteistyön tavoitteena on edistää elinkaarilaatua ja muunneltavuutta asuntorakentamisessa.

Kohteen asemakaavallisena lähtökohtana on puolijulkisen piharaitin varrelle jäsentyvä pientalokortteli. Etupihat korkeine sisääntulokuisteineen liittyvät suoraan raittiin. Tilavat oleskelupihat avautuvat etelään tai länteen.
Aurinkorivissä asuntojen muunneltavuus on toteutettu soveltamalla avointa rakentamista ja jakamalla rakennus kiinteisiin ja muuttuviin osiin. Rakennuksen runko ja vaippa sekä asuntojen märkätilat ovat kiinteitä. Muuttuvilla osilla on muodostettu vaihtoehtoisia pohjaratkaisuja kuhunkin asuntoon erilaisille perhekokoonpanoille ja elämäntavoille. Julkisivujen aukotus on kiinteä ja siinä on varauduttu erilaisiin pohjaratkaisuihin. Tuleva asukas valitsi asuntonsa pohjaratkaisun kolmesta vaihtoehdosta, joiden lukumäärää saattoi lisätä valitsemalla asunnon eri kerrokset eri vaihtoehdoista. Asuntojen muuttaminen on mahdollista käytön aikana remontin yhteydessä.

Aurinkorivi housing is the winning entry of an invited competition for a Finnish Europahouse project in Vuosaari, Helsinki. The objective of the international Europahouse collaboration is to add future value to residential construction by promoting adaptability and sustainability in housing.

In Aurinkorivi terraced housing and semi-detached houses are grouped along a common access way. All houses have an entrance porch as a semi-private connection between indoor and outdoor space linking them to the common access or adjoining streets. Spacious private yards open towards south or west. The separation of fixed and optional parts is chosen as a strategy in creating adaptability and variation inside dwelling units. The frames, foundations, roofs, porches, balconies, elevations and window-openings, interior staircases and wet spaces are part of the fixed base-building. Three optional dwelling unit configurations are offered for each unit. Ground floor option and first floor option can be decided independently. Fixed parts are designed to accommodate the alternative lay-outs so that floor plans can be changed even during use in connection with renovation.


valokuvat/ photos: Arno de la Chapelle